Description
From those claiming that the tool will replace our jobs to those who speak of its impending demise, generative design has had a rocky start ... but what if we looked at generative design from a different angle? What if we took a co-authoring approach to generative design? We’ll look at a few case studies utilizing Generative Design for Revit with Dynamo—but where the session will get very exciting is when we demonstrate how you can use Generative Design for Revit as a co-authoring tool directly within the Revit project environment. This is where we believe the most value lies—where the tool becomes an extension of the designer, and where co-authorship gives you powers not known to be so intuitive. Join us as we enter this next chapter of building information modeling (BIM)—co-authorship through generative design.
Key Learnings
- Learn how to use Dynamo to create Generative Design for Revit studies.
- Discover what’s possible and not possible with Generative Design for Revit.
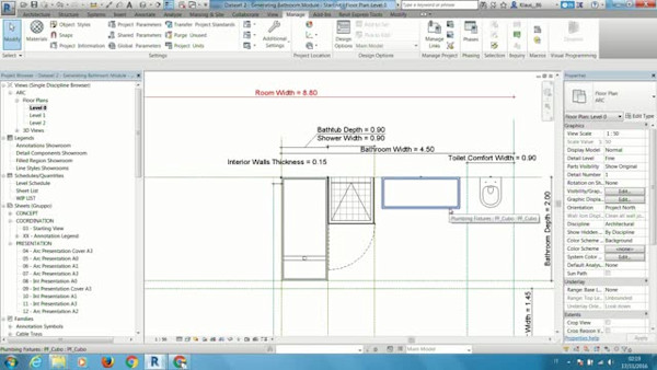
- Learn how to use model assist tools within Revit to automate design.
- Learn how to use co-authoring generative design directly within a Revit project.
Downloads
Tags
Product | |
Industries | |
Topics |
People who like this class also liked

Hands-on Lab
Dynamo for Structural Precast

Instructional Demo